programme : concours pour l’extension de l’Hôpital de Lavaux
adresse : Hôpital de Lavaux, Cully
maître de l’ouvrage : Fondation de l’Hôpital de Lavaux et commune de Cully
architecte paysagiste : Emanuelle Bonnemaison, Lausanne
visuels : xy-ar.ch, Lausanne
concours : 2010_2011 - procédure ouverte à deux degrés
classement : 2ème prix
contexte :
La Fondation de l’Hôpital de Lavaux à Cully (VD) souhaite développer ses activités et son site pour répondre aux besoins socio-sanitaires de la population du grand Lausanne. L’objet du présent concours a pour objet la construction de nouveaux bâtiments pour accueillir principalement :

concept :
L’extension du site de l’Hôpital de Lavaux est une intervention majeure en raison de son impact au coeur d’une région protégée et reconnue sur le plan mondial par l’UNESCO. Dans ce sens, l’avant-projet, confirmant les intentions de la proposition du premier degré qui reconnaissait pleinement la valeur paysagère et patrimoniale du site, poursuit la recherche de son intégration en minimisant l’impact programmatique sur le lieu et en l’inscrivant dans une volumétrie fragmentée à l’échelle des constructions existantes.
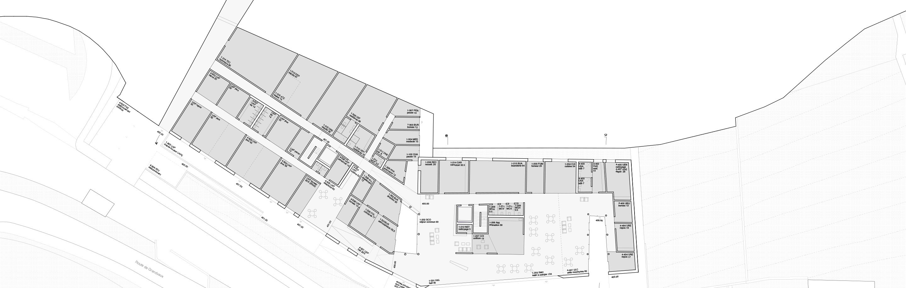
implantation :
Les trois secteurs programmatiques (Résidence, Centre thérapeutique et EMS) sont ainsi répartis comme suit : Un premier socle/terrasse est implanté en amont de la parcelle, à la rupture de pente, dans le prolongement du plateau de l’Hôpital. Il accueille la Résidence et le Centre thérapeutique. Ce dernier privilégie la relation aux usagers de l’Hôpital et aux locataires de la Résidence, laquelle s’inscrit dans la prolongation naturelle des résidences des « Champs d’Or ». Un second socle/terrasse est positionné en aval de la parcelle en connexion directe avec la route de Grandvaux. Il est occupé par l’EMS dont les résidents profitent ainsi de la proximité du village de Cully et du lac. Ces deux entités, réunies par un coteau de vigne, sont connectées entre elles et à l’Hôpital existant par une liaison intérieure et des cheminements extérieurs.

paysage :
Trois unités de paysage Est-Ouest feuillettent le site et le relient au contexte existant :
Planches du projet